Przenieś się w przyszłość z Tiny House Cosmo!
Ten wyjątkowy domek zachwyca niemal kosmicznym designem, łącząc nowoczesne technologie z elegancką estetyką. Z przestronnym wnętrzem i inteligentnymi rozwiązaniami, Cosmo to idealne miejsce dla tych, którzy pragną komfortu i stylu w jednym. Odkryj nowy wymiar życia w zgodzie z naturą i pozwól, by ten futurystyczny domek stał się Twoim azylem na ziemi!

Dostępne rozmiary:

20,5m² (8 x 2.55m)

16,5m² (6.5 x 2.55m)

Cena od 187,5 tys. zł netto

Cena zależy głównie od rozmiaru, rodzaju podwozia oraz wyposażenia.

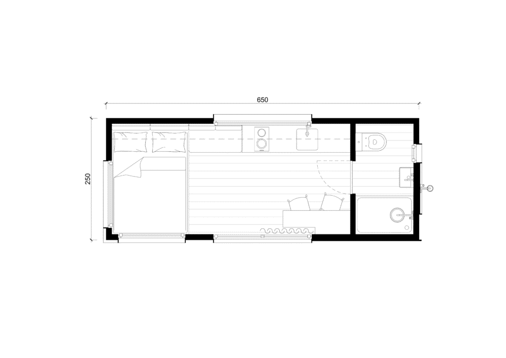
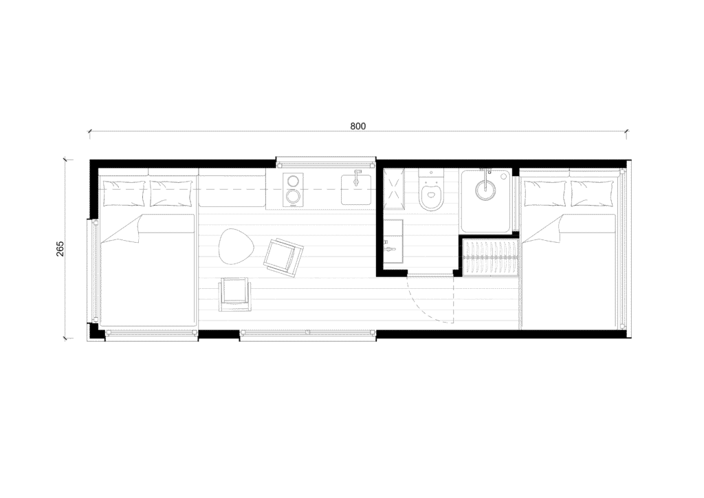
COSMO 20,5m²

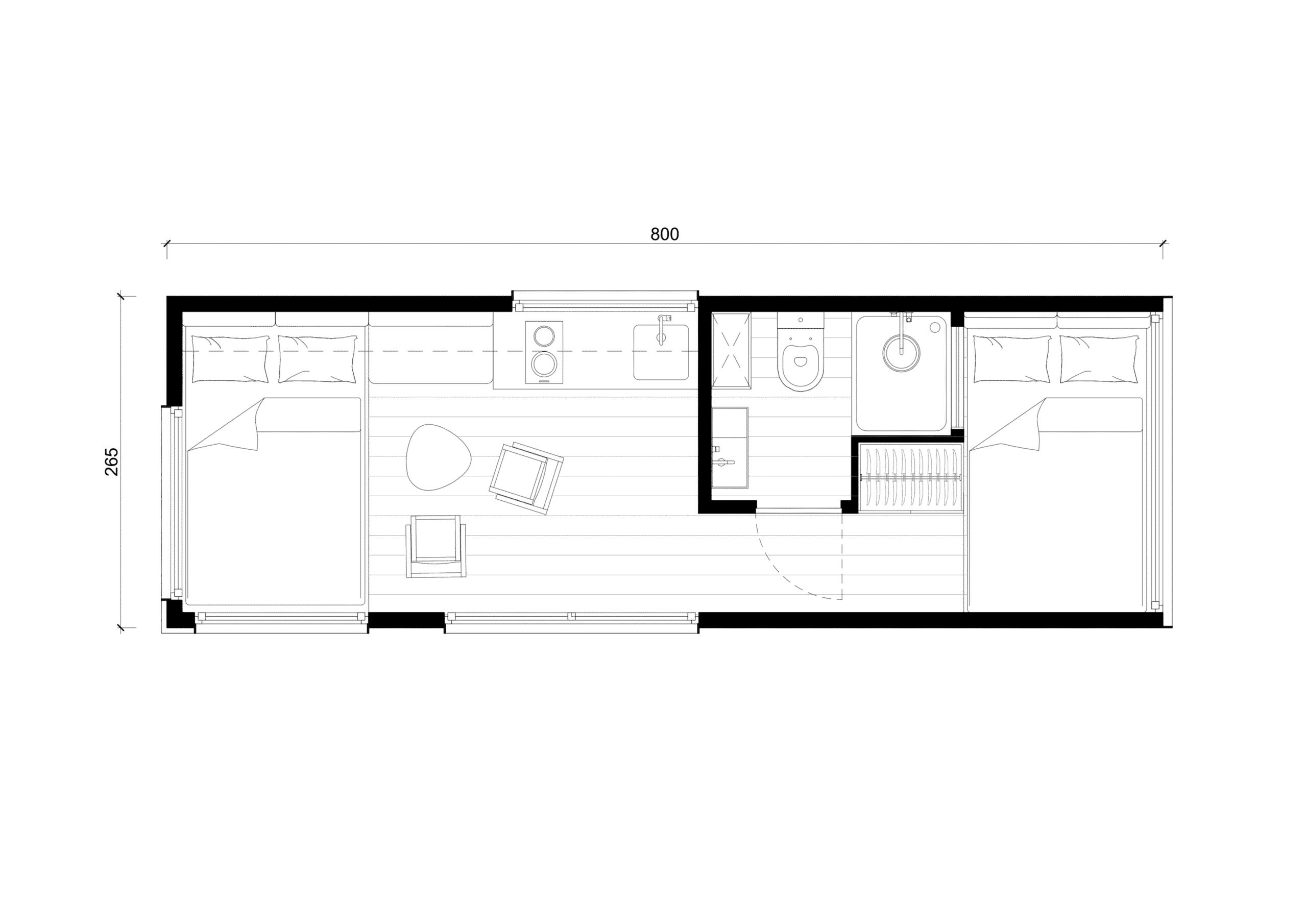
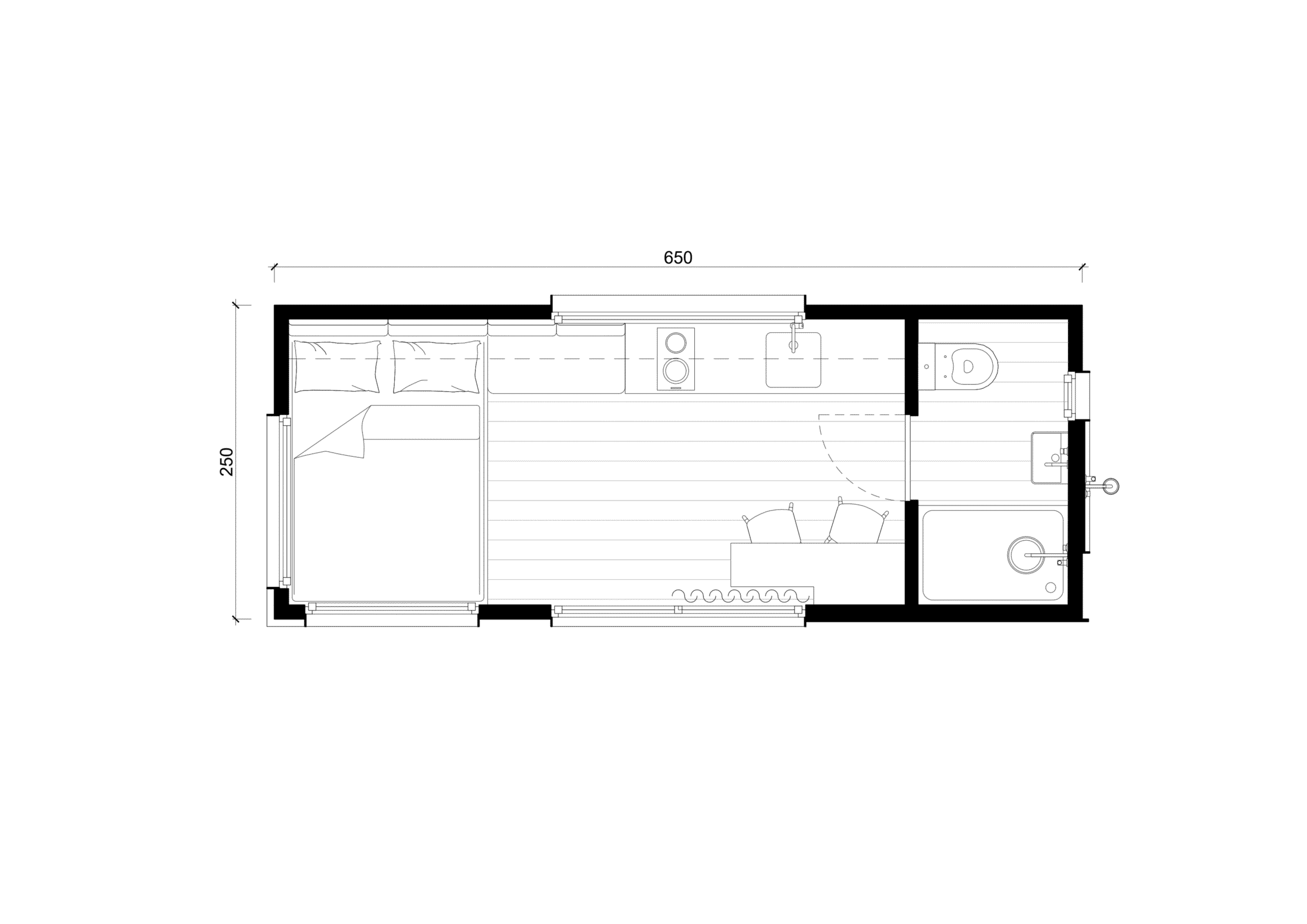
COSMO 16,5m²

Zrelaksuj się

w otoczeniu natury

Bądź astronautą. 

Poczuj się jak w kapsule kosmicznej

Miejsce pracy

ma znaczenie

Zaszalej

z gotowaniem

pobierz ulotkę

ZOBACZ NASZĄ PEŁNĄ OFERTĘ

DOMY REKREACYJNE I MIESZKALNE

Domy rekreacyjne o powierzchni od 24m² do 108m². Dowożone na miejsce w całości lub w modułach. Dostępne w różnych wersjach izolacji oraz wyposażenia.

DOMy MIESZKALNE

Domy mieszkalne o powierzchni ponad 100m². Dowożone na miejsce w modułach i łączone w ciągu 48 godzin, pozwalające niemal na natychmiastowe zamieszkanie. Produkowane zgodnie z wytycznymi dla domów mieszkalnych.

AKCESORIA I DODATKI

Elementy komplementarne takie jak wiaty, domki ogrodowe, garaże zewnętrzne, przedsionki, tarasy, pergole, instalacje fotowoltaiczne.