NOYA

Odkryj magię życia w miniaturze z domkiem Noya!
Ten urokliwy Tiny House łączy nowoczesny design z funkcjonalnością, oferując wszystko, co niezbędne do komfortowego życia w harmonii z naturą. Idealny na weekendowe wypady lub nawet stałe miejsce zamieszkania – Noya to przestrzeń, która inspiruje do prostszego, bardziej ekologicznego stylu życia. Wzbogać swoje dni o wyjątkowe chwile w tym wyjątkowym domku!

Dostępne rozmiary:

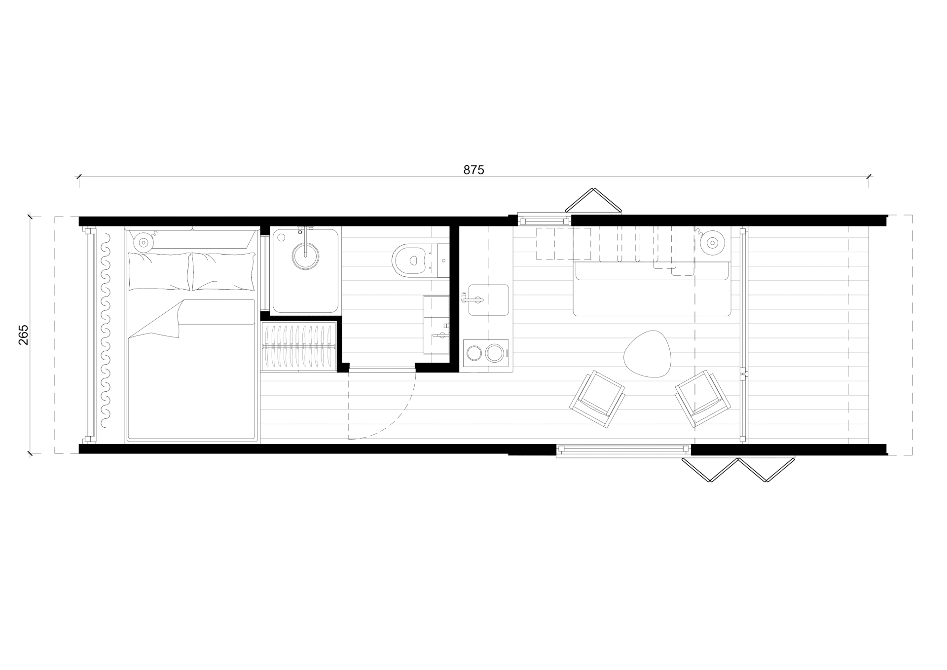
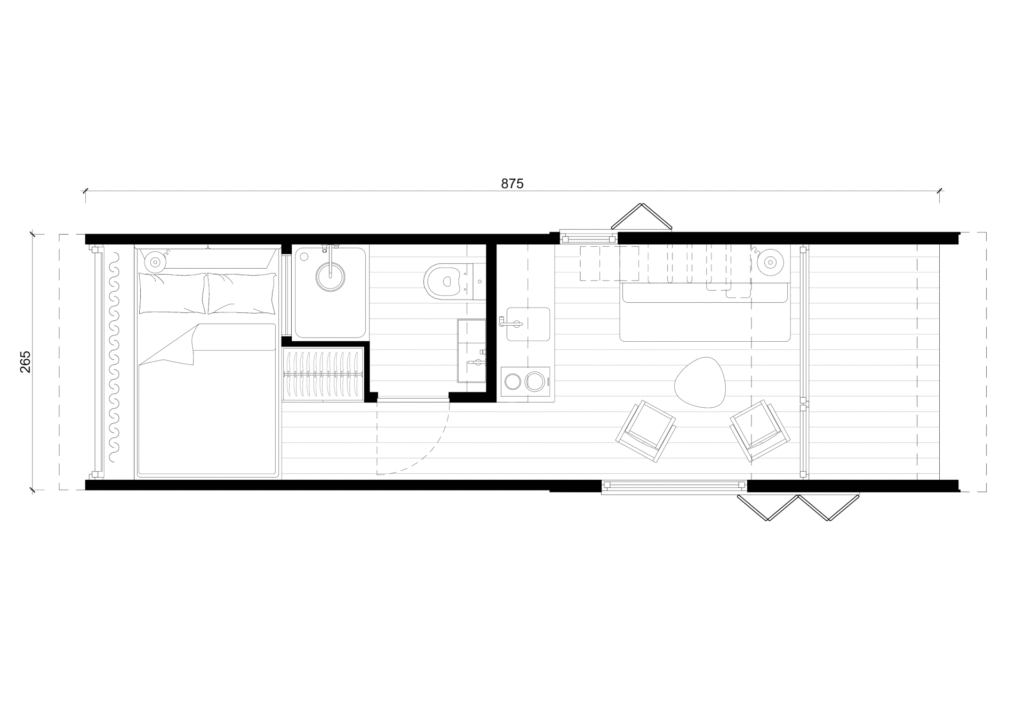
16,5m² (6,5m x 2,55m)

27m² (9m x 3m)

Cena od 171 tys. zł netto

Cena zależy głównie od rozmiaru, rodzaju podwozia oraz wyposażenia.

NOYA 27m²

NOYA 16m²

Dodatkowe łóżko

na antresolce

Panoramiczny widok

z twojego łóżka

Pokój dzienny

wypełniony światłem

Unikalne rozwiązanie

twojego zamykanego tarasu

pobierz ulotkę

ZOBACZ NASZĄ PEŁNĄ OFERTĘ

DOMY REKREACYJNE I MIESZKALNE

Domy rekreacyjne o powierzchni od 24m² do 108m². Dowożone na miejsce w całości lub w modułach. Dostępne w różnych wersjach izolacji oraz wyposażenia.

DOMy MIESZKALNE

Domy mieszkalne o powierzchni ponad 100m². Dowożone na miejsce w modułach i łączone w ciągu 48 godzin, pozwalające niemal na natychmiastowe zamieszkanie. Produkowane zgodnie z wytycznymi dla domów mieszkalnych.

AKCESORIA I DODATKI

Elementy komplementarne takie jak wiaty, domki ogrodowe, garaże zewnętrzne, przedsionki, tarasy, pergole, instalacje fotowoltaiczne.